Меден рудник - зона А Archives - Home2u Преминаване към съдържанието

Архиви

  1. Апартамент 88.22 кв.м – последен етап на строителство, пред Акт 15. Бургас, Меден Рудник

    Home2U недвижими имоти предлага на вашето внимание просторен тристаен апартамент с обща площ от 88.22 кв.м, разположен в модерна новострояща се сграда на етап пред Акт 15. Имотът има отлично разпределение и включва: светла и просторна дневна с кухненски кът; две самостоятелни спални; баня с тоалетна; складово помещение в сутерена, което осигурява допълнително удобство и…

  2. Чудесен апартамент преустроен в ТРИстаен ! Средец етаж! Западен !

    Home2U недвижими имоти предлага за продажба чудесен ТРИстаен апартамент в кв.Меден Рудник ! Имота се състои от дневна с кухненски бокс , две спални , входно антре, баня и тоалетна, две тераси! Западно изложение, самостоятелно саниран апартамент, много слънчев и топъл апартамент! Предлага се изцяло оборудван и обзаведен ,готов за нанасяне ! За повече информация…

  3. Гарсониера в много добро състояние! жк. Меден Рудник!

    Home2U продава гарсониера в жк. Меден Рудник, зона В – район с удобства, добра инфраструктура и лесен достъп до градски транспорт. 🏠 Характеристики: В процес на саниране 5-ти етаж Южно изложение Много добро общо състояние Светло и функционално разпределение За повече информация и оглед се обадете и цитирайте код: 139237

  4. Просторен и слънчев апартамент 102 кв.м, до ключ, бутикова сграда

    Home2U представя на Вашето внимание слънчев и просторен апартамент, завършен до ключ, в най-спокойната част на кв. Меден рудник.  ✅ Бутикова сграда с 12 апартамента, луксозни общи части и АКТ 16  ✅ 2 ри етаж с изложение изток/юг.  ✅102 кв.м разпределени в голяма дневна с кухненски бокс, две спални, баня с тоалетна, отделна тоалетна, две…

  5. Равен парцел в кв.Меден рудник, вилна зона Каменица! ТОК И ВОДА в близост!

    Home2U недвижими имоти представя на Вашето внимание равен парцел в непосредствена близост до град Бургас!!! Перфектен за къща за целогодишно живеене или вила за отдих. Парцела е с площ от 1000 квадратни метра и се намира в силно заселена местност. За повече информация и огледи ни потърсете на повочения телефон и цитирайте този код: 136354

  6. Директно от инвеститора !Тристаен 93.75 кв.м. апартамент в новострояща се сграда в ж.к. Меден Рудник

    Home2U недвижими имоти предлагат на вашето внимание просторен (93.75) , тристаен апартамент в новостроящ се комплекс – ж.к. Меден Рудник ✨ Предлагаме Ви апартамент с площ 93,80 кв.м. в съвременен жилищен комплекс, реализиран от доказан строител с множество завършени проекти в Бургас. ✅ Функционално разпределение (без преходи) ✅ Сигурно и качествено строителство ✅ Развиваща се…

  7. Бургас, Меден Рудник-В – паркоместа от 10 500евро

    Home2U недвижими имоти предлага на вашето внимание паркоместа, разположени в новострояща се сграда в района на JYSK. Имотите се намират в подземен паркинг с контролиран достъп и са подходящи както за собствено ползване, така и за инвестиция. Сградата е на етап пред Акт 14. Удобна локация с лесен достъп до основни пътни артерии и градски…

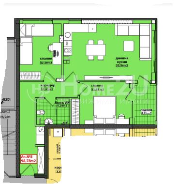
  8. Бургас, Меден Рудник-В от 900евро на кв.м.

    Home2U недвижими имоти предлага на вашето внимание просторен тристаен апартамент с площ от 98.78 кв.м. Жилището се състои от просторна дневна с кухненски кът, две спални, баня с тоалетна, складово помещение и тераса с достъп от дневната. Сградата е ново строителство с модерна визия, качествено изпълнени общи части и асансьор. Намира се в района на…

  9. Бургас, Меден Рудник-В от 900евро на кв.м.

    Home2U недвижими имоти предлага на вашето внимание просторен тристаен апартамент с площ от 89.94 кв.м. Жилището се състои от просторна дневна с кухненски кът, две спални, баня с тоалетна, складово помещение. Сградата е ново строителство с модерна визия, качествено изпълнени общи части и асансьор. Намира се в района на JYSK, с удобен достъп до основни…

  10. Готова сграда! Виза за втора! АКТ 16! До ключ!

    Home2U продава парцел с ГОТОВА сграда с АКТ 16, изрядни документи и възможност за втора такава на добра локация в жк. Меден Рудник! Площ на парцел – 587кв.м., РЗП на сградата – 487кв.м. Състои се от три просторни тристайни апартамента, по един апартамент на етаж, всеки с площ от 130 кв.м.! Със завършени и боядисани…