Более 80% объектов недвижимости продаются ещё до их выставления на продажу.
Подпишитесь, чтобы быть в курсе последних предложений на рынке.
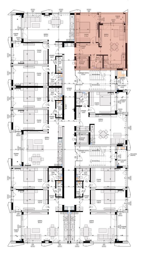
167,954 €
(2,407 €/m2)
Области: 69.77 m2
Апартаменты: №52
Этаж: 8
О недвижимости
Цена включает НДС.
Способ оплаты:
-30% при подписании договора
-30% при достижении этажа, на котором находится квартира
-30% при завершении чернового строительства (Акт 14)
-10% при полностью завершенном здании (Акт 15/Акт 16)Возможность других способов оплаты.
Позвоните нам, чтобы записаться на прием и рассмотреть все детали конкретного объекта недвижимости.
Подпишитесь, чтобы быть в курсе последних предложений на рынке.