1-стаен, 48.28 m2, Варна, 57,930 €, Home2U, Хоум Ту Ю Skip To Content

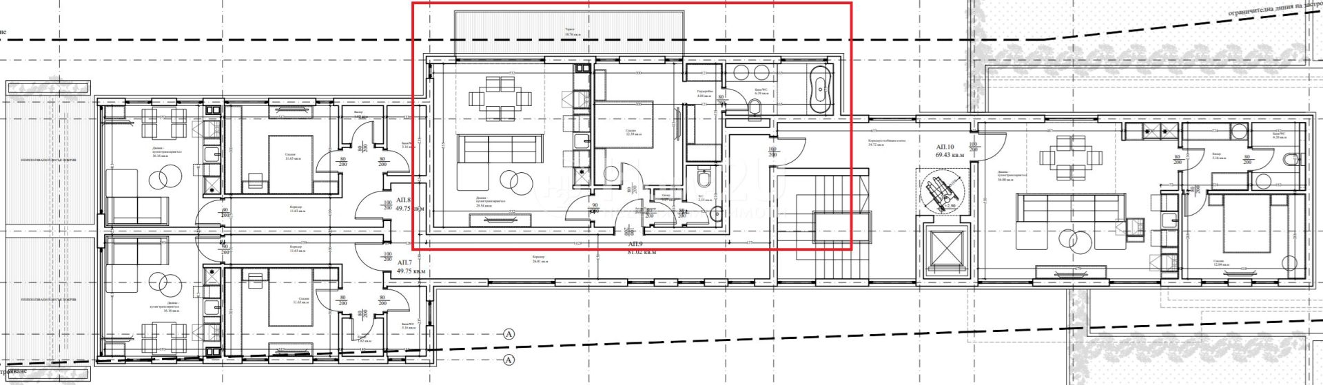
АП. 9.1

57,930 €

(1,199 €/m2)

  • Области: 48.28 m2

  • Апартаменты: №9.1

  • Этаж: 4

  • вид: Запад

О недвижимости

Расположение:
Коридор - 2.99 кв.м
Кладовая - 0.91 кв.м
Ванная / Туалет - 3.42 кв.м
Гостиная - 21.25 кв.м
Терраса - 5.31 кв.м

Свяжитесь с нами!

"*"обозначает обязательные поля

Имя*

Связаться с нами

Позвоните нам, чтобы записаться на прием и рассмотреть все детали конкретного объекта недвижимости.

Более 80% объектов недвижимости продаются ещё до их выставления на продажу.

Подпишитесь, чтобы быть в курсе последних предложений на рынке.

Имя(Обязательно)

Свяжитесь с нами!

"*"обозначает обязательные поля

Имя*