Более 80% объектов недвижимости продаются ещё до их выставления на продажу.
Подпишитесь, чтобы быть в курсе последних предложений на рынке.
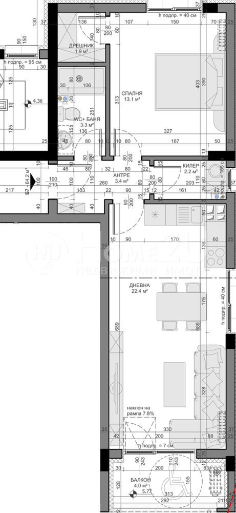
97,700 €
(1,299 €/m2)
Области: 75.2 m2
Апартаменты: №7
Этаж: 3
вид: Восток, Запад
Позвоните нам, чтобы записаться на прием и рассмотреть все детали конкретного объекта недвижимости.
Подпишитесь, чтобы быть в курсе последних предложений на рынке.
Код объявления: 13884