2-стаен, 62.36 m2, София, 143,428 €, Home2U, Хоум Ту Ю Преминаване към съдържанието

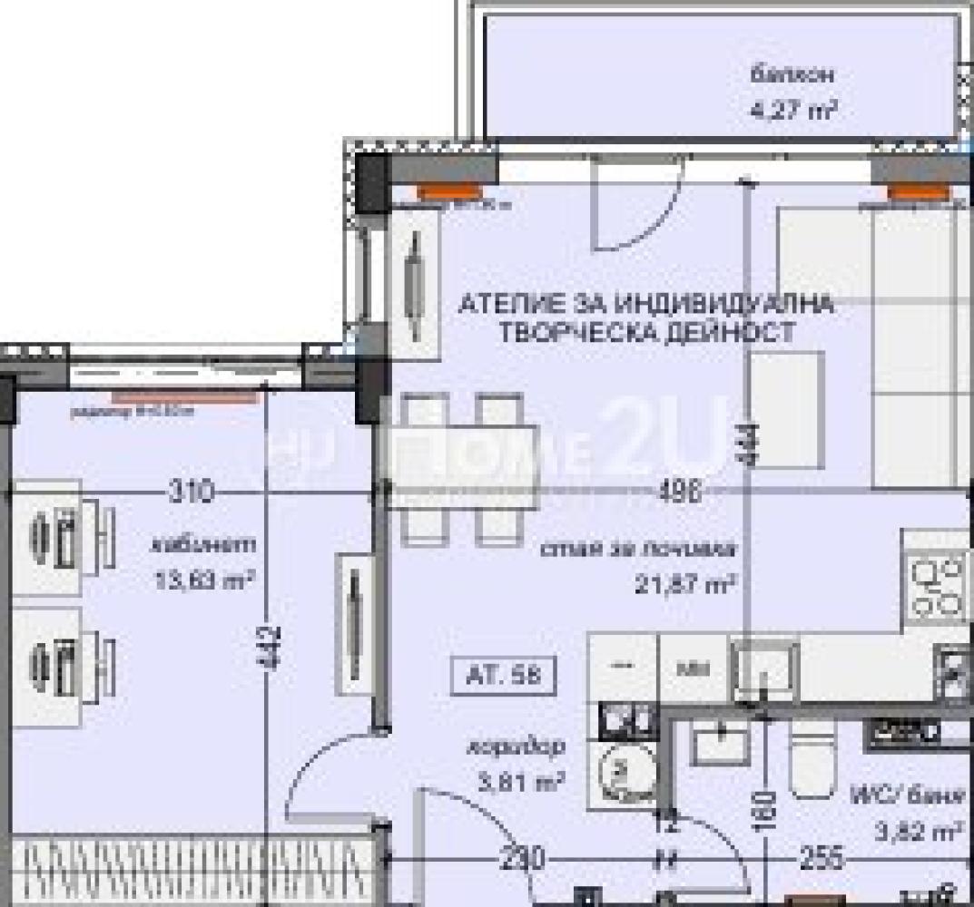
Б 58

143,428 €

(2,300 €/m2)

  • Области: 62.36 m2

  • Апартамент: №58

  • Етаж: 1

  • Изглед: Север

За имота

Ателие

Свържи се с нас!

"*" показва задължителните полета

Име*

Свържете се с нас

Обадете ни се за да уговорим среща, на която да разгледате всички детайли по конкретния имот

Над 80% от имотите се продават още преди да бъдат обявени.

Абонирай се за да не изпускаш най-новите оферти на пазара.

Name(Задължителни)

Свържи се с нас!

"*" показва задължителните полета

Име*