2-room, 55.04 m2, Obelya 2, 88,943 €, Home2U, Хоум Ту Ю Skip To Content
1/2

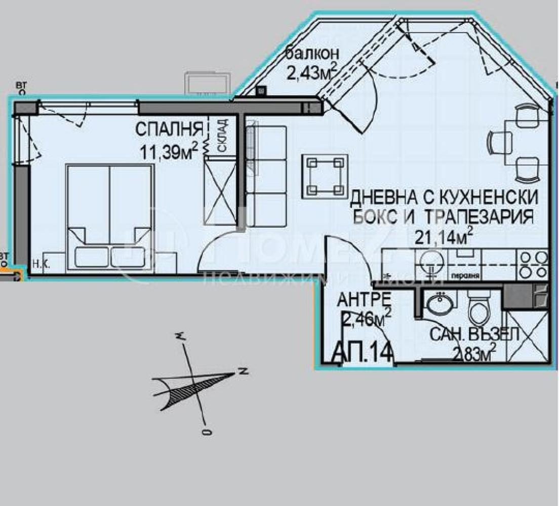
APT. 14

88,943 €

(1,615 €/m2)

  • Areas: 55.04 m2

  • Apartment: №14

  • Floor: 5

  • View: South, West

Contact us!

"*" indicates required fields

Name*

Contact us

Call us to make an appointment to look at all the details of the particular property

Over 80% of properties are sold before they are even listed.

Subscribe to stay up to date with the latest offers on the market.

Name(Required)

Contact us!

"*" indicates required fields

Name*