4-room, 219.4 m2, Malinova dolina, 485,000 €, Home2U, Хоум Ту Ю Skip To Content
1/1

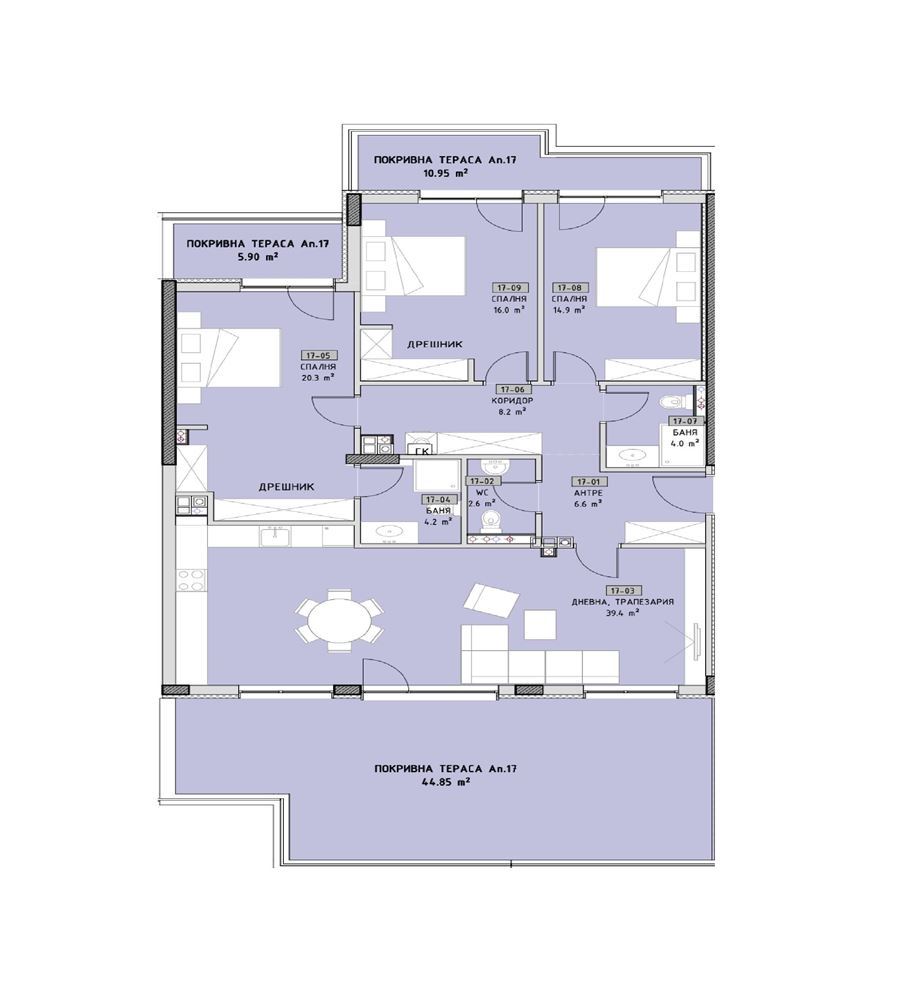
APT. 17

485,000 €

(2,210 €/m2)

  • Areas: 219.4 m2

  • Apartment: №17

  • Floor: 4

Contact us!

"*" indicates required fields

Name*

Contact us

Call us to make an appointment to look at all the details of the particular property

Over 80% of properties are sold before they are even listed.

Subscribe to stay up to date with the latest offers on the market.

Name(Required)

Contact us!

"*" indicates required fields

Name*