3-room, 178.88 m2, Center, 432,890 €, Home2U, Хоум Ту Ю Skip To Content
1/1

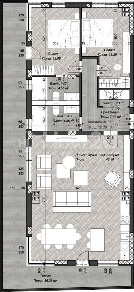
AP. 57 Includes Basement

432,890 €

(2,420 €/m2)

  • Areas: 178.88 m2

  • Apartment: №57

  • Floor: 10

  • View: Northwest, North, Northeast, East, West

Contact us!

"*" indicates required fields

Name*

Contact us

Call us to make an appointment to look at all the details of the particular property

Over 80% of properties are sold before they are even listed.

Subscribe to stay up to date with the latest offers on the market.

Name(Required)

Contact us!

"*" indicates required fields

Name*