2-room, 66.48 m2, Levski, 123,350 €, Home2U, Хоум Ту Ю Skip To Content

2-room

123,350 €

(1,855 €/m2)

Buy only for /month with

About the property

PROVEN INVESTOR! CONSTRUCTION STARTED!
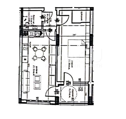
We present to you a two-room apartment in a newly constructed building. The apartment has the following layout: entrance hall, living room with access to a terrace, bedroom with access to the same terrace, bathroom and toilet together. For your convenience, we attach a layout scheme. For more information and viewing, call now and quote code: 129799

  • Location:
    Levski, Varna

  • Area in square meters:
    66.48 m2

  • Construction:
    Brick

  • Floor:
    3

Contact us!

"*" indicates required fields

Name*

Contact us

Call us to make an appointment to look at all the details of the particular property

Over 80% of properties are sold before they are even listed.

Subscribe to stay up to date with the latest offers on the market.

Name(Required)

Contact us!

"*" indicates required fields

Name*