2-room, 71.05 m2, St. Nikola Area, 120,785 €, Home2U, Хоум Ту Ю Skip To Content

2-room

120,785 €

(1,700 €/m2)

Buy only for /month with

About the property

LUXURY CONSTRUCTION! PROJECT STARTED!
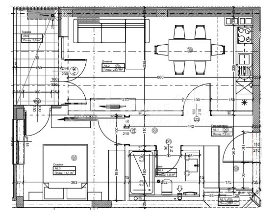
The building will be constructed with high-class materials. The property has the following layout: living room and bedroom with shared access to a terrace, sanitary facilities. Open parking spaces, underground parking spaces, and garages can be purchased for each apartment. For your convenience, we provide a layout scheme of the apartment. If interested, please call and quote the following code: 109199

  • Location:
    St. Nikola Area, Varna

  • Area in square meters:
    71.05 m2

  • Construction:
    Brick

  • Floor:
    1

Contact us!

"*" indicates required fields

Name*

Contact us

Call us to make an appointment to look at all the details of the particular property

Over 80% of properties are sold before they are even listed.

Subscribe to stay up to date with the latest offers on the market.

Name(Required)

Contact us!

"*" indicates required fields

Name*