Maisonette, 205.9 m2, Chalkidiki, 470,000 €, Home2U, Хоум Ту Ю Skip To Content

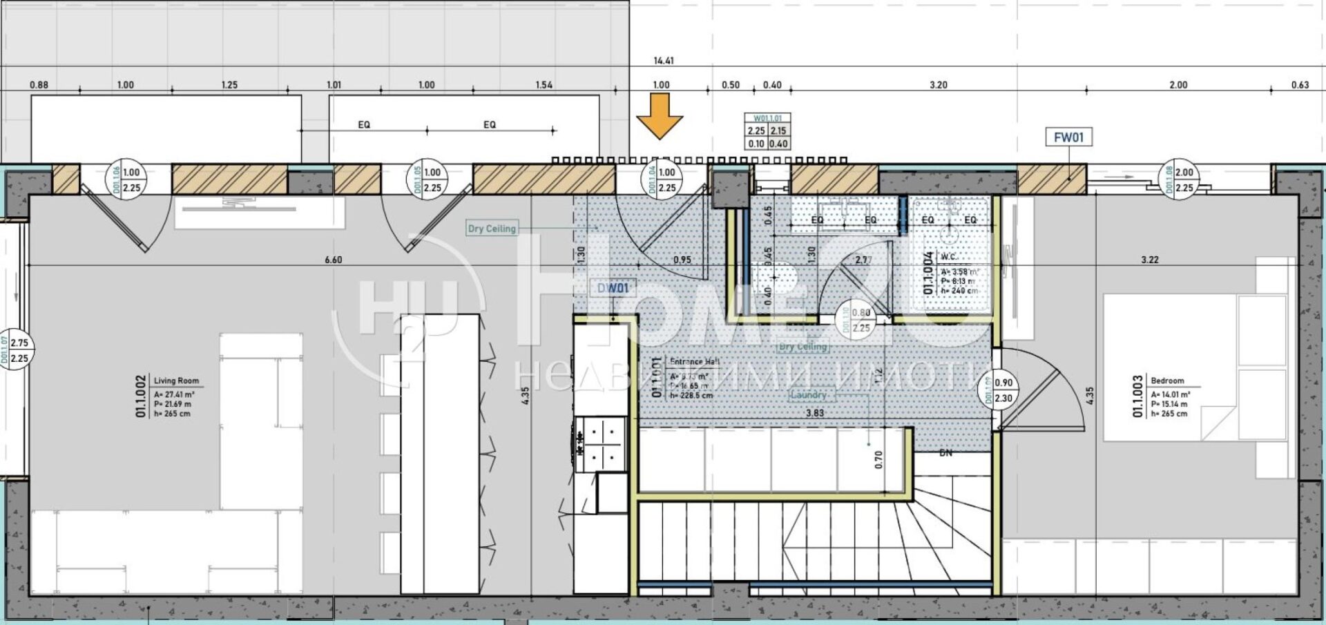
APT. 08.1

470,000 €

(2,282 €/m2)

Buy only for /month with

About the property
  • Location:
    Chalkidiki, Polychrono

  • Area in square meters:
    205.9 m2

  • Floor:
    ground floor

Contact us!

"*" indicates required fields

Name*

Contact us

Call us to make an appointment to look at all the details of the particular property

Over 80% of properties are sold before they are even listed.

Subscribe to stay up to date with the latest offers on the market.

Name(Required)

Contact us!

"*" indicates required fields

Name*