Over 80% of properties are sold before they are even listed.
Subscribe to stay up to date with the latest offers on the market.
(1,559 €/m2)
Buy only for /month with
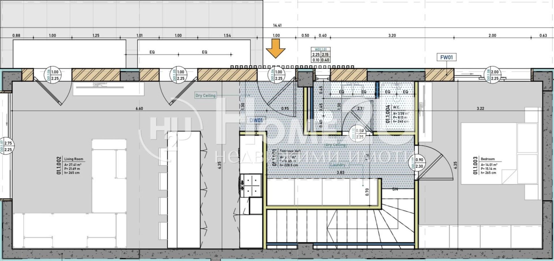
About the property
Location:
Chalkidiki, Polychrono
Area in square meters:
301.4 m2
Floor:
ground floor
Call us to make an appointment to look at all the details of the particular property
Subscribe to stay up to date with the latest offers on the market.
Property code: 255907