Over 80% of properties are sold before they are even listed.
Subscribe to stay up to date with the latest offers on the market.
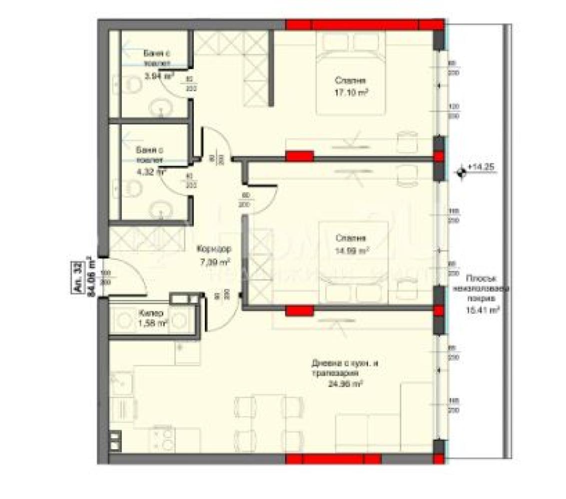
163,706 €
(1,489 €/m2)
Areas: 109.87 m2
Apartment: №32
Floor: 6
Call us to make an appointment to look at all the details of the particular property
Subscribe to stay up to date with the latest offers on the market.