Над 80% от имотите се продават още преди да бъдат обявени.
Абонирай се за да не изпускаш най-новите оферти на пазара.
470,000 €
(2,220 €/m2)
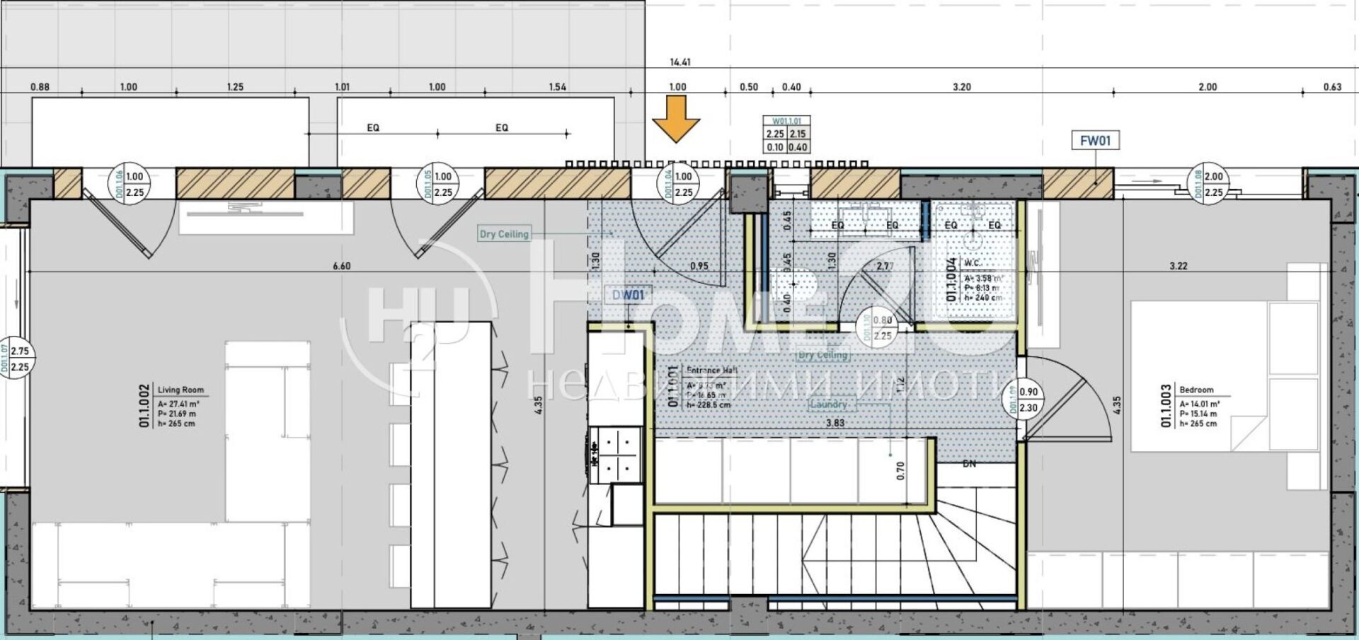
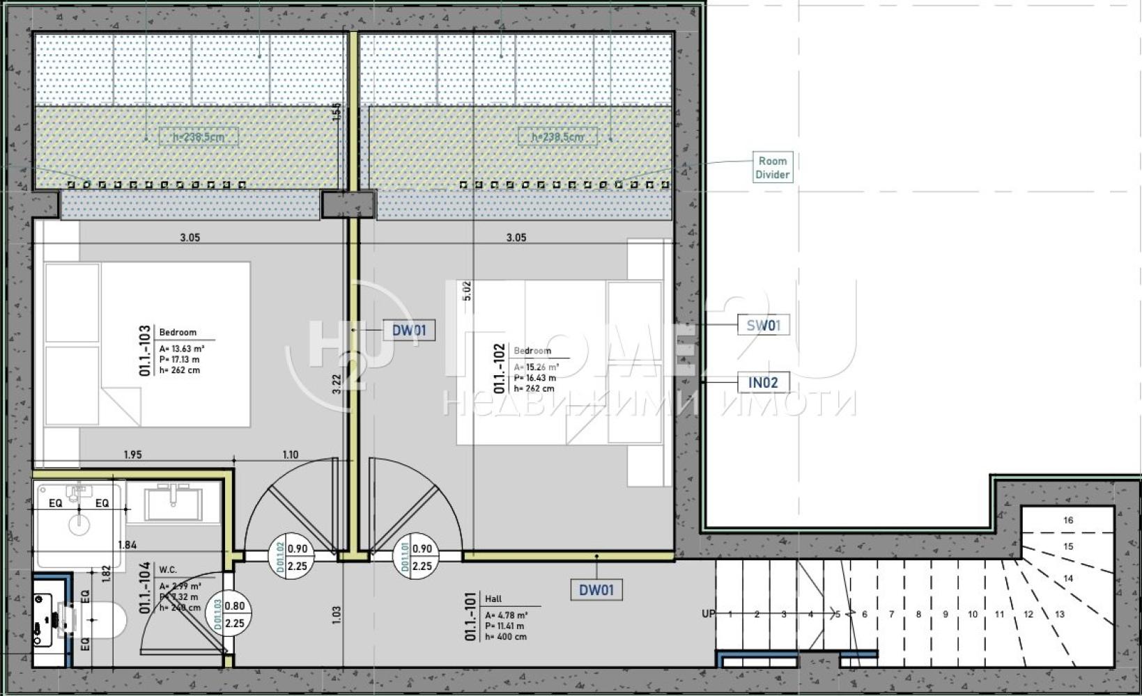
Области: 211.71 m2
Апартамент: №07.1
Етаж: партер
Обадете ни се за да уговорим среща, на която да разгледате всички детайли по конкретния имот
Абонирай се за да не изпускаш най-новите оферти на пазара.
Код на обявата: 255900