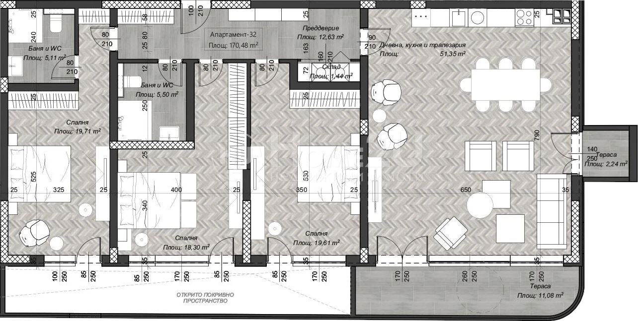
4-стаен, 201.02 m2, София, 495,903 €, Home2U, Хоум Ту Ю Преминаване към съдържанието

АП. 32 Включва мазе

495,903 €

(2,466 €/m2)

  • Области: 201.02 m2

  • Апартамент: №32

  • Етаж: 6

  • Изглед: Запад

За имота

Обща площ с покривна тераса 219.89

Свържи се с нас!

"*" показва задължителните полета

Име*

Свържете се с нас

Обадете ни се за да уговорим среща, на която да разгледате всички детайли по конкретния имот

Над 80% от имотите се продават още преди да бъдат обявени.

Абонирай се за да не изпускаш най-новите оферти на пазара.

Name(Задължителни)

Свържи се с нас!

"*" показва задължителните полета

Име*