Над 80% от имотите се продават още преди да бъдат обявени.
Абонирай се за да не изпускаш най-новите оферти на пазара.
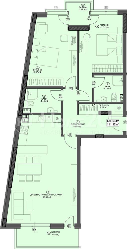
283,564 €
(2,280 €/m2)
Области: 124.37 m2
Апартамент: №42
Етаж: 7
Изглед: Север, Юг
Обадете ни се за да уговорим среща, на която да разгледате всички детайли по конкретния имот
Абонирай се за да не изпускаш най-новите оферти на пазара.
Код на обявата: 14552