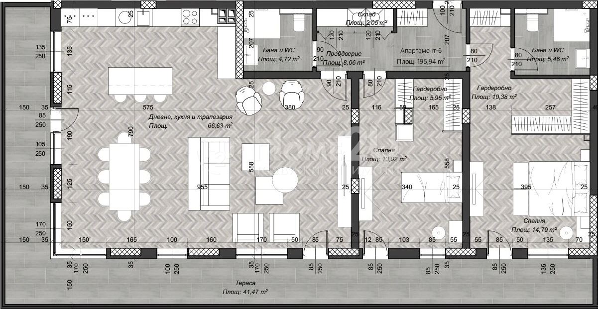
3-стаен, 231.05 m2, София, 539,764 €, Home2U, Хоум Ту Ю Преминаване към съдържанието

АП. 6 Включва мазе

539,764 €

(2,336 €/m2)

  • Области: 231.05 m2

  • Апартамент: №6

  • Етаж: 3

  • Изглед: Северозапад, Север, Запад

Свържи се с нас!

"*" показва задължителните полета

Име*

Свържете се с нас

Обадете ни се за да уговорим среща, на която да разгледате всички детайли по конкретния имот

Над 80% от имотите се продават още преди да бъдат обявени.

Абонирай се за да не изпускаш най-новите оферти на пазара.

Name(Задължителни)

Свържи се с нас!

"*" показва задължителните полета

Име*