Над 80% от имотите се продават още преди да бъдат обявени.
Абонирай се за да не изпускаш най-новите оферти на пазара.
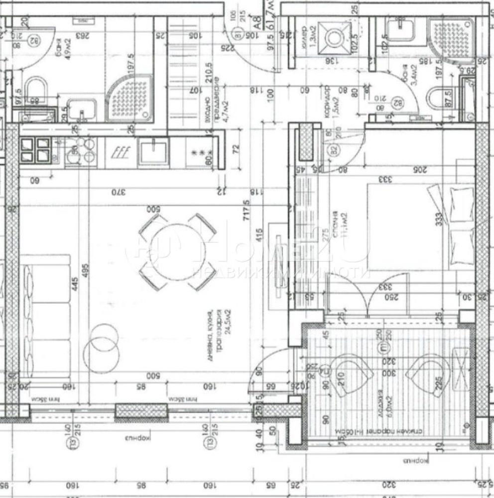
221,650 €
(3,100 €/m2)
Области: 71.5 m2
Апартамент: №8
Етаж: 2
Изглед: Запад
Обадете ни се за да уговорим среща, на която да разгледате всички детайли по конкретния имот
Абонирай се за да не изпускаш най-новите оферти на пазара.