2-стаен, 95 m2, Малинова Долина, 140,570 €, Home2U, Хоум Ту Ю Преминаване към съдържанието

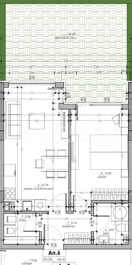
А 6

140,570 €

(1,479 €/m2)

  • Области: 95 m2

  • Апартамент: №6

  • Етаж: 1

Свържи се с нас!

"*" показва задължителните полета

Име*

Свържете се с нас

Обадете ни се за да уговорим среща, на която да разгледате всички детайли по конкретния имот

Над 80% от имотите се продават още преди да бъдат обявени.

Абонирай се за да не изпускаш най-новите оферти на пазара.

Name(Задължителни)

Свържи се с нас!

"*" показва задължителните полета

Име*