Къща, 232 m2, Варна, област, 259,000 €, Home2U, Хоум Ту Ю Преминаване към съдържанието

! ТИШИНА И ПРОСТОР ! ВИСОКО КАЧЕСТВО ! ГОЛЯМА ВСЕКИДНЕВНА ! ВЕРАНДА !

259,000 €

(1,116 €/m2)

Купи само за /месец с

За имота

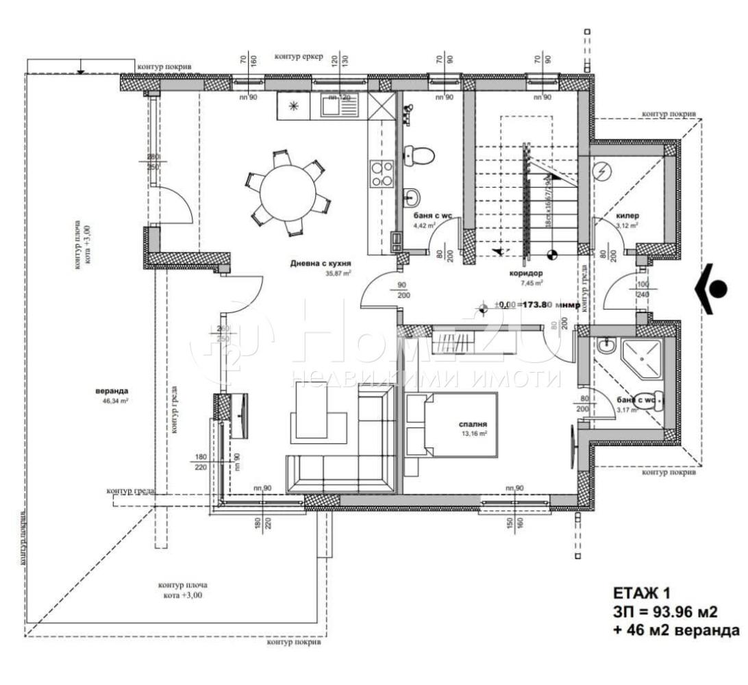
Между гората и морето – вашият нов дом в Приселци Ви очаква! Чист въздух, тишина, спокойствие и семеен уют- само на 10 минути от Варна! Представяме Ви двуетажни къщи в с. Приселци. На първи етаж е ситуирана голяма всекидневна с площ от 50м2 с излаз на веранда с площ от 46м2, две бани и тоалетни и килер/перално помещение, като разпределението е такова, че може да бъде обособена още една спалня, а верандата да бъде затворена и превърната в лятна тераса/зимна градина. Южното изложение и олемите френски прозорци осигуряват светлина през целия ден! По вътрешно стълбище се стига до етаж 2, на който са разположени коридор, 3 спални, едната от които с дрешник, другите с гардеробни ниши и излаз на тераса, баня и тоалетна. Към имота има и 2 паркоместа! Къщите се завършват с най-висок клас материали (напр. дограма REHAU SYNEGO 3ply. 80mm, 4 сезона) и могат да бъдат адаптирани спрямо нуждите на бъдещите собственици (термопомпа, подово отопление, зарядна станция и др.). Към Парцелът е самостоятелен с площ от 500 м2 и южно изложение. От имота можете да се насладите на спокойствие и просторна гледка! За улеснение и повече яснота прилагаме схема на разпределение на имота. Обадете се СЕГА и цитирайте код 128371!

  • Местоположение:
    Варна, област, с.Приселци

  • Площ в квадратни метри:
    232 m2

  • Строителство:
    Тухла

  • Изложение:
    Изток, Югоизток, Юг, Югозапад, Запад

  • Етаж:
    партер

Свържи се с нас!

"*" показва задължителните полета

Име*

Свържете се с нас

Обадете ни се за да уговорим среща, на която да разгледате всички детайли по конкретния имот

Над 80% от имотите се продават още преди да бъдат обявени.

Абонирай се за да не изпускаш най-новите оферти на пазара.

Name(Задължителни)

Свържи се с нас!

"*" показва задължителните полета

Име*