2-стаен, 74 m2, гр.Костинброд, 134,999 €, Home2U, Хоум Ту Ю Преминаване към съдържанието

2-стаен

134,999 €

(1,824 €/m2)

Купи само за /месец с

За имота

СРЕДЕН ЕТАЖ ! ИЗЛОЖЕНИЕ / ЮГ - Запад ! ПАНОРАМНА ГЛЕДКА !

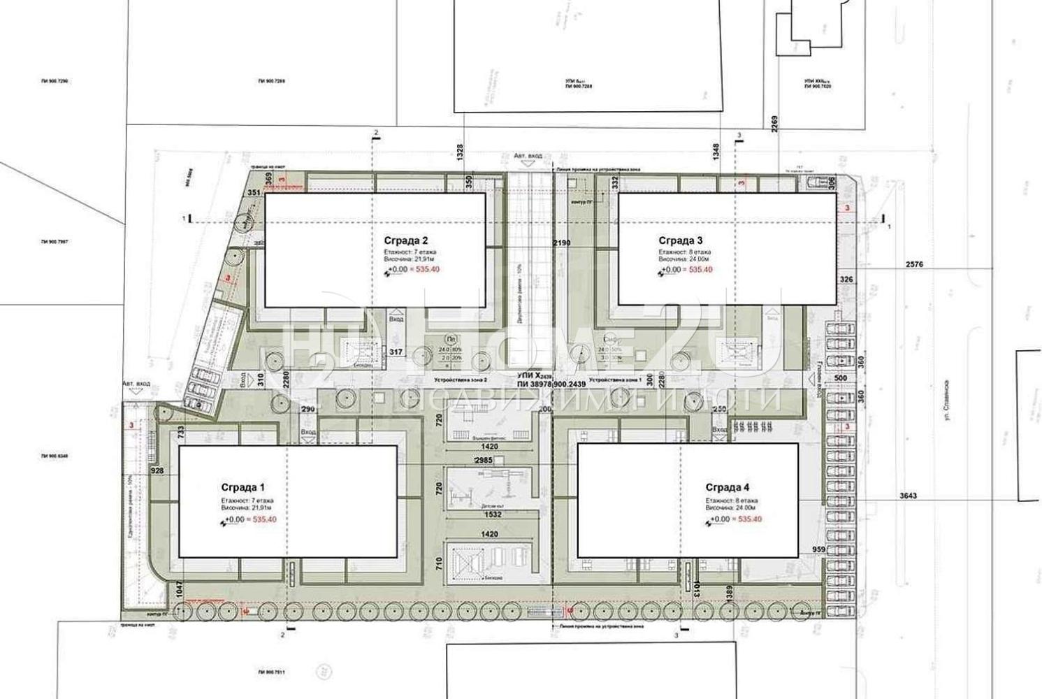
Предлагаме за продажба двустаен апартамент, разположен на пети етаж от седем в Сграда 2, част от модерен жилищен комплекс, проектиран с внимание към детайла и комфорта на своите обитатели.

Сградата е в напреднал етап на строителство, завършено е изграждането на първите четири етажа, излята е плочата на петия, а в момента се подготвят вертикалите за следващия етаж.

Характеристики на сградата: Сградата се отличава със съвременна архитектура, луксозно изпълнени общи части и асансьор, използвани са материали от най-висок клас, гарантиращи енергийна ефективност, комфорт и дълготрайност.

Предимства на комплекса: Жилищният комплекс впечатлява с просторен вътрешен двор, богато озеленяване, детски площадки и зони за отдих, които създават усещане за уют и спокойствие. Сигурността е осигурена чрез контролиран достъп и видеонаблюдение. Отоплението е на газ, с възможност за климатици във всяко помещение.

Разпределение на апартамента: светла дневна с кухненски бокс и трапезария, спалня, баня с тоалетна, складово помещение, коридор и тераса. Изложението е юг -запад, осигуряващо постоянна слънчева светлина, топлина и прекрасна панорамна гледка. Разположението на имота на висок етаж гарантира уединение и простор.

Допълнително удобство: към имота има осигурено подземно паркомясто, което се предлага за продажба отделно.

Този апартамент е идеален избор както за семейно жилище, така и за инвестиция в модерен, сигурен и озеленен комплекс с отлична инфраструктура.

За повече информация и огледи се обадете сега и цитирайте код: 138608

  • Местоположение:
    гр.Костинброд, София, област

  • Площ в квадратни метри:
    74 m2

  • Строителство:
    Тухла

  • Изложение:
    Юг, Югозапад, Запад

  • Етаж:
    5

Свържи се с нас!

"*" показва задължителните полета

Име*

Свържете се с нас

Обадете ни се за да уговорим среща, на която да разгледате всички детайли по конкретния имот

Над 80% от имотите се продават още преди да бъдат обявени.

Абонирай се за да не изпускаш най-новите оферти на пазара.

Name(Задължителни)

Свържи се с нас!

"*" показва задължителните полета

Име*