2-стаен, 94.54 m2, София, 165,445 €, Home2U, Хоум Ту Ю Преминаване към съдържанието

2-стаен

165,445 €

(1,749 €/m2)

Купи само за /месец с

За имота

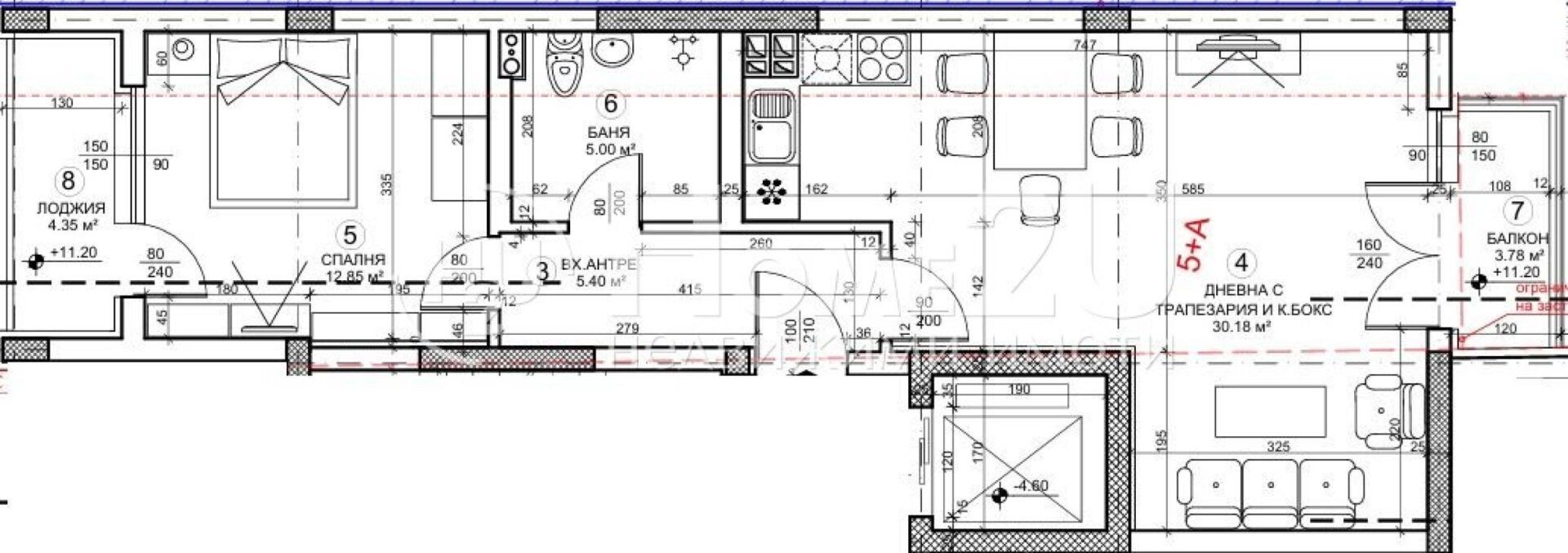
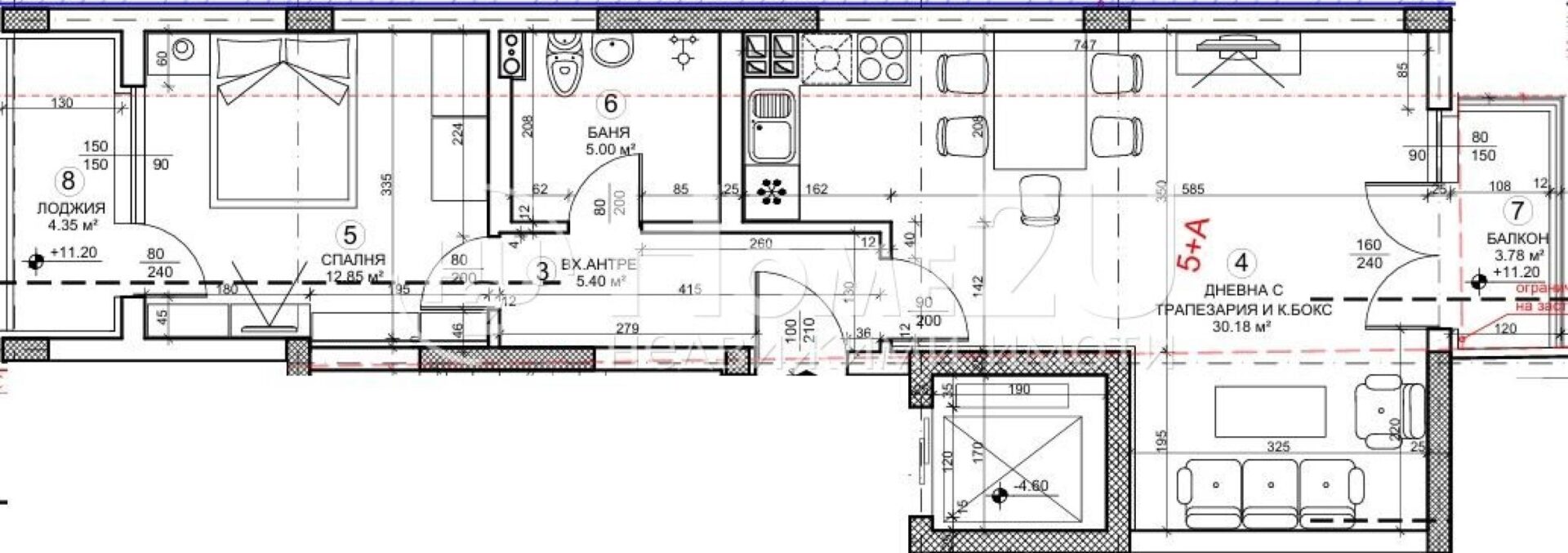
ЦЕНА БЕЗ АНАЛОГ !!! НА МЕТРИ ОТ ЛЪВОВ МОСТ !!! МЕТРОСТАНЦИЯ !!! ЗАПОЧНАЛО СТРОИТЕЛСТВО !!! БУТИКОВА СГРАДА !!!Представяме на вашето внимание двустаен апартамент на среден етаж, в новострояща се малка бутикова сграда на отлична локация, на метри от "Лъвов мост" и метростанция "Лъвов мост". Жилището е със следното разпределение: входно антре, просторна дневна с южно изложение и излаз към балкон, просторна баня и спалня с излаз към лоджия. Има възможност за покупка и на подземен гараж. За повече информация, обадете се сега и цитирайте следния код: 141871.

  • Местоположение:
    София, Център

  • Площ в квадратни метри:
    94.54 m2

  • Строителство:
    Тухла

  • Етаж:
    4

Свържи се с нас!

"*" показва задължителните полета

Име*

Свържете се с нас

Обадете ни се за да уговорим среща, на която да разгледате всички детайли по конкретния имот

Над 80% от имотите се продават още преди да бъдат обявени.

Абонирай се за да не изпускаш най-новите оферти на пазара.

Name(Задължителни)

Свържи се с нас!

"*" показва задължителните полета

Име*