2-стаен, 70 m2, гр.Костинброд, 127,999 €, Home2U, Хоум Ту Ю Преминаване към съдържанието

2-стаен

127,999 €

(1,828 €/m2)

Купи само за /месец с

За имота

СРЕДЕН ЕТАЖ ! ИЗЦЯЛО ИЗТОК ! НЕСКРИВАЕМА ГЛЕДКА !

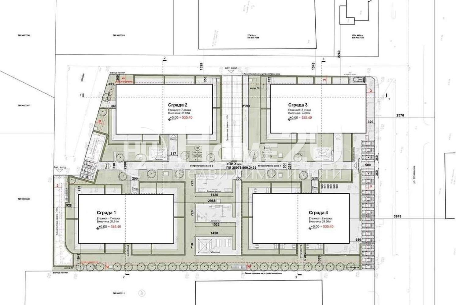
Двустайно жилище в модерна нова сграда с панорамна гледка- Сграда 1.

Предлагаме функционален двустаен апартамент, разположен на четвърти етаж от седем в нова, модерна жилищна сграда, част от престижен затворен комплекс.

Сградата е в напреднал етап на строителство, зидариите напредват и се изпълняват на последния седми етаж, започва работа по ел. инсталациите.

Локация и предимства на комплекса: Комплексът предлага спокойна и зелена среда за живеене, с просторен вътрешен двор, богато озеленяване, детски площадки и зони за отдих. Сигурността на жителите е осигурена чрез контролиран достъп и видеонаблюдение. Отоплението е на газ, с възможност за допълнителна климатизация. Характеристики на сградата Сградата впечатлява със съвременна архитектура, луксозно изпълнени общи части и асансьор. Използвани са висококачествени материали, гарантиращи дълготрайност, енергийна ефективност и отлична звукоизолация.

Характеристики на имота:

  • Апартаментът се намира на висок етаж и е с изложение изток.
  • Жилището е функционално разпределено и включва: просторна дневна с кухня и трапезария, спалня, баня с тоалетна, складово помещение / килер, коридор и тераса.
  • Допълнителна информация Към апартамента има възможност за покупка на подземно паркомясто, което се предлага отделно.

Това жилище е отличен избор както за собствен дом, така и за инвестиция с цел отдаване под наем, съчетава модерен дизайн, комфорт и сигурност в динамично развиващ се район.

За повече информация и огледи се обадете сега и цитирайте код: 138603

  • Местоположение:
    гр.Костинброд, София, област

  • Площ в квадратни метри:
    70 m2

  • Строителство:
    Тухла

  • Изложение:
    Изток

  • Етаж:
    4

Свържи се с нас!

"*" показва задължителните полета

Име*

Свържете се с нас

Обадете ни се за да уговорим среща, на която да разгледате всички детайли по конкретния имот

Над 80% от имотите се продават още преди да бъдат обявени.

Абонирай се за да не изпускаш най-новите оферти на пазара.

Name(Задължителни)

Свържи се с нас!

"*" показва задължителните полета

Име*