3-стаен, 200 m2, Пловдив, 270,000 €, Home2U, Хоум Ту Ю Преминаване към съдържанието

3-стаен

270,000 €

(1,350 €/m2)

Купи само за /месец с

За имота

СВЕТЪЛ АПАРТАМЕНТ! ПАНОРАМНА ГЛЕДКА! ЛУКСОЗНА СГРАДА!

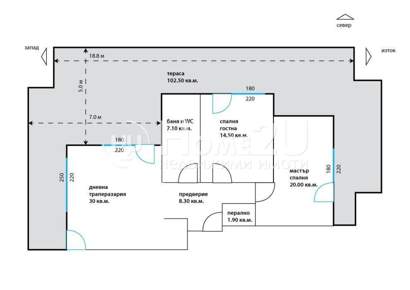
Представяме на Вашето внимание тристаен апартамент в района на кв. Христо Смирненски. Имотът е инстинско бижу за ценителите на панорамните гледки и спокойствиею. Апартаментът има следното функционално разпределение: входно антре, дневна с кухненски бокс и излаз на панорамна тераса от всички стаи, две спални и голяма баня.

За Ваше улеснение прилагаме схема на разпределение на имота. Обадете се сега и цитирайте следния код: 139002

  • Местоположение:
    Пловдив, Христо Смирненски

  • Площ в квадратни метри:
    200 m2

  • Строителство:
    Тухла

  • Етаж:
    6

Свържи се с нас!

"*" показва задължителните полета

Име*

Свържете се с нас

Обадете ни се за да уговорим среща, на която да разгледате всички детайли по конкретния имот

Над 80% от имотите се продават още преди да бъдат обявени.

Абонирай се за да не изпускаш най-новите оферти на пазара.

Name(Задължителни)

Свържи се с нас!

"*" показва задължителните полета

Име*