3-стаен, 110 m2, с.Гара Елин Пелин, 125,548 €, Home2U, Хоум Ту Ю Преминаване към съдържанието

3-стаен

125,548 €

(1,141 €/m2)

Купи само за /месец с

За имота

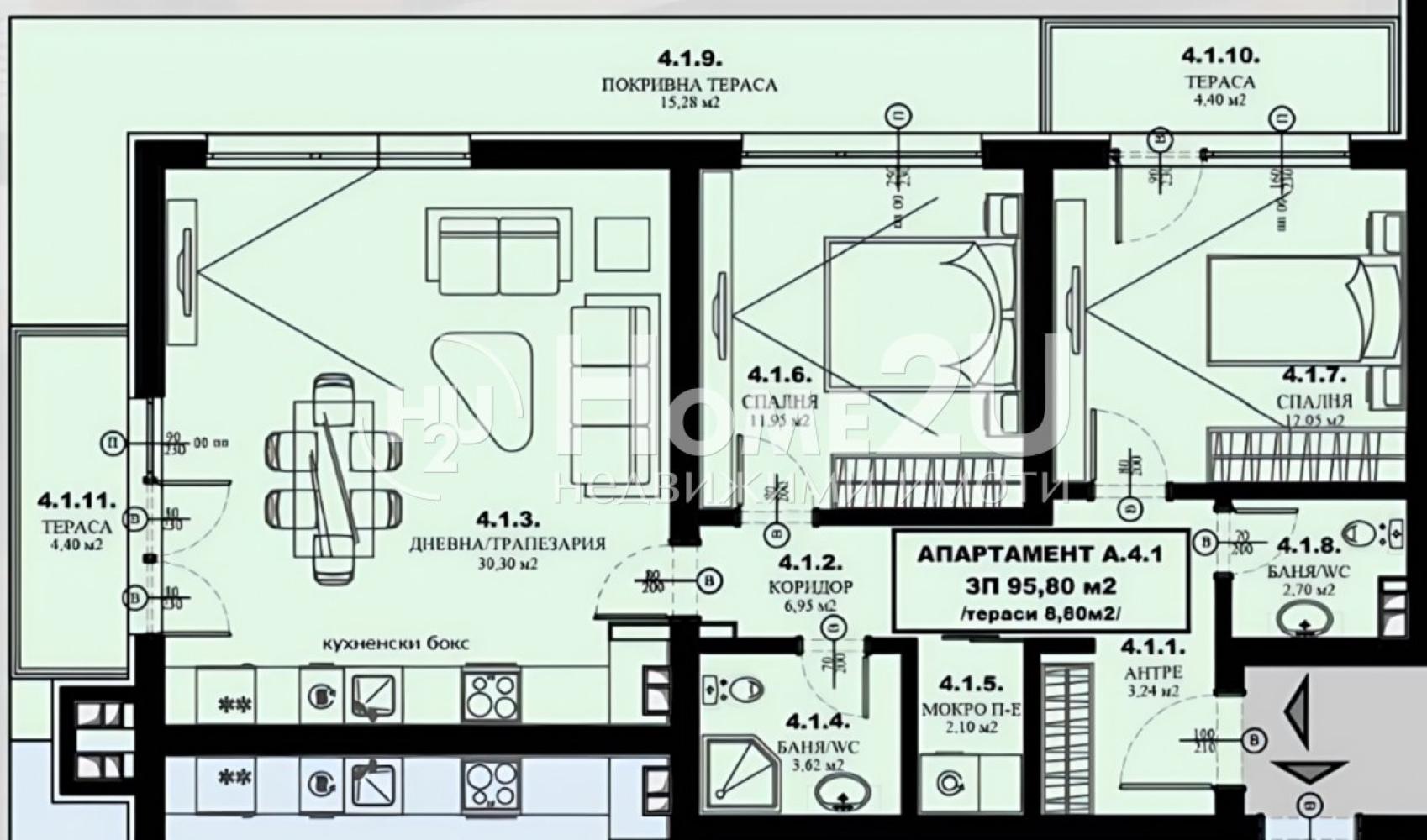
15 МИН ОТ СОФИЯ ! ! ! СПОКОЙСТВИЕ ! ! ! ТИШИНА ! ! ! НИСЪК ПРОЦЕНТ ОБЩИ ЧАСТИ ! ! ! ! ЧАСТ ОТ ЖИЛИЩЕН КОМПЛЕКС ! ! ! Home2U представя на вашето внимание тристаен апартамент в новострояща се сграда намираща се в Гара Елин Пелин, само на 25мин от идеалния центъра на гр. София. Апартамента е в малка бутикова сграда на 5 етажа в новостроящ се комплекс от 4 сгради, проектиран с мисъл за комфортно обитание за всяко семейство. Всеки един от апартаментите в сграда е проектиран с мисъл за уют, спокойствие и функционалност, гарантиращо максимално използване на пространството. Ситуиран е на пети етаж и се състой от антре, дневна с кухненски бокс с излаз на тераса, спалня, спалня с излаз на тераса две бани с тоалетни и мокро помещение. Към апартамента има опция да се закупи паркомясто или гаражи. За Ваше улеснение прилагаме схема на разпределение на имота. Ако желаете да закупите имота, обадете се СЕГА и цитирайте следния код: 141237

  • Местоположение:
    с.Гара Елин Пелин, София, област

  • Площ в квадратни метри:
    110 m2

  • Строителство:
    Тухла

  • Етаж:
    4

Свържи се с нас!

"*" показва задължителните полета

Име*

Свържете се с нас

Обадете ни се за да уговорим среща, на която да разгледате всички детайли по конкретния имот

Над 80% от имотите се продават още преди да бъдат обявени.

Абонирай се за да не изпускаш най-новите оферти на пазара.

Name(Задължителни)

Свържи се с нас!

"*" показва задължителните полета

Име*