3-стаен, 89.75 m2, Малинова Долина, 192,963 €, Home2U, Хоум Ту Ю Преминаване към съдържанието

3-стаен

192,963 €

(2,150 €/m2)

Купи само за /месец с

За имота

20% СЕГА и 80% СЛЕД АКТ16 ! ! ! 5 МИНУТИ ОТ ДЕТСКА ГРАДИНА ! ! ! ФУНКЦИОНАЛНИ РАЗПРЕДЕЛЕНИЯ ! ! ! НАЙ-БЪРЗО РАЗВИВАЩИЯТ СЕ РАЙОН В ЮЖНА СОФИЯ ! ! !

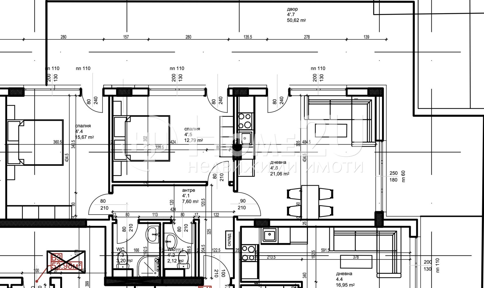
Хоум Ту Ю представя на вашето внимание тристаен апартамент в новострояща се сграда в Малинова Долина. Микрорайонът, в който попада сградата, е най-източната точка на квартала и е с преобладаващо ниско застрояване – предимно четириетажни бутикови сгради или комплекси, от които се откриват невероятни гледки към Витоша планина. Апартамента има следното функционално разпределение: входно антре, дневна с кухненски бокс, спалня, втора спалня, баня с тоалетна, втора тоалетна и прилежащ двор към апартамент с излаз от всички помещения. В близост до сградата ще бъдат изградени ключови улици и булеварди, като ул. Едуард Генов, която свързва бул. Климент Охридски със Симеоновско Шосе, и ул. Тодор Недков, която ще осигури връзка между ж.к. Дървеница и Околовръстния път. Предстои изграждането и на нови метростанции, които ще свържат Ринг Мол и Симеоновски лифт с централната част на града. В сграда има двустайни и тристайни свободни апартаменти с гъвкави схеми на плащане и възможност за основно плащане след акт 16.

Ако желаете да закупите този имот или имот в сградата, не се колебайте да се свържете с нас и да цитирате този код: 257077

  • Местоположение:
    Малинова Долина, София

  • Площ в квадратни метри:
    89.75 m2

  • Строителство:
    Ново строителство

  • Изложение:
    Изток

  • Етаж:
    партер

Свържи се с нас!

"*" показва задължителните полета

Име*

Свържете се с нас

Обадете ни се за да уговорим среща, на която да разгледате всички детайли по конкретния имот

Над 80% от имотите се продават още преди да бъдат обявени.

Абонирай се за да не изпускаш най-новите оферти на пазара.

Name(Задължителни)

Свържи се с нас!

"*" показва задължителните полета

Име*