3-стаен, 94.55 m2, Пловдив, 80,000 €, Home2U, Хоум Ту Ю Преминаване към съдържанието

3-стаен

80,000 €

(846 €/m2)

Купи само за /месец с

За имота

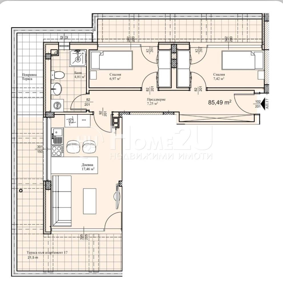
Компактен тристаен апартамент находящ се на тихо и спокойно място!Състои се от хол с кухненски бокс,две спални, санитарен възел,просторни тераси, които биха да бъдат чатично присъединени към жилищните площи.Общата площ на имота е 94.55 кв.м.,а чиста застроена е 85.49 кв.м.Има възможност за закупуване на гараж и/или външни паркоместа.

Очакван акт 14 юни месец.

  • Местоположение:
    Пловдив, Прослав

  • Площ в квадратни метри:
    94.55 m2

  • Строителство:
    Ново строителство

  • Етаж:
    партер

Свържи се с нас!

"*" показва задължителните полета

Име*

Свържете се с нас

Обадете ни се за да уговорим среща, на която да разгледате всички детайли по конкретния имот

Над 80% от имотите се продават още преди да бъдат обявени.

Абонирай се за да не изпускаш най-новите оферти на пазара.

Name(Задължителни)

Свържи се с нас!

"*" показва задължителните полета

Име*