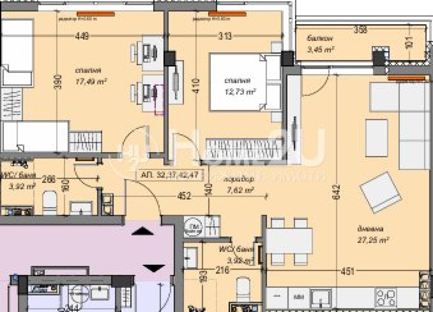
3-стаен, 99.26 m2, София, 228,298 €, Home2U, Хоум Ту Ю Преминаване към съдържанието

A 32

228,298 €

(2,300 €/m2)

  • Области: 99.26 m2

  • Апартамент: №32

  • Етаж: партер

  • Изглед: Североизток

Свържи се с нас!

"*" показва задължителните полета

Име*

Свържете се с нас

Обадете ни се за да уговорим среща, на която да разгледате всички детайли по конкретния имот

Над 80% от имотите се продават още преди да бъдат обявени.

Абонирай се за да не изпускаш най-новите оферти на пазара.

Name(Задължителни)

Свържи се с нас!

"*" показва задължителните полета

Име*